Good returns expected. Ideal for blended families. Home and income or duplex living. Endless options.
Situated on a titled North facing section of 551m2 with stunning mountain views.
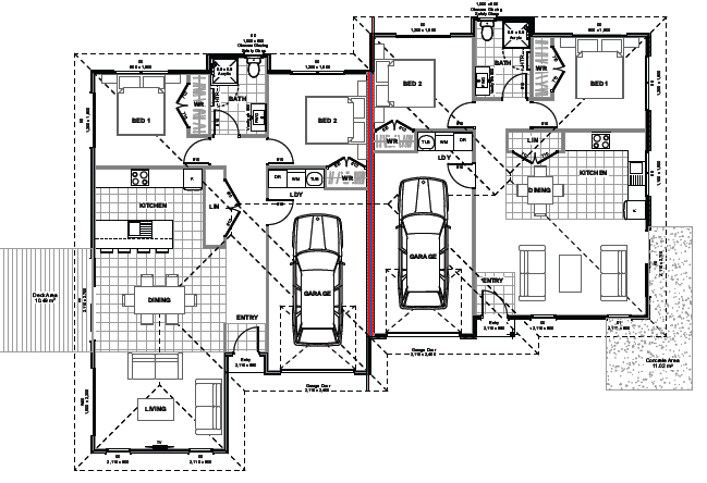
Two legal dwellings totalling 190.22m2. Each property offers 2 bedrooms, full bathroom, open plan living with a lock up garage separating the two homes to ensure total privacy. Opposite living spaces.
Good size section offering ample outdoor space to not feel hemmed in.
Contact Norman or Nadine for any further information
Norman 021 339396 or Nadine 021 08179075
Main Home: 102.44m2 2 Bedrooms, 1 Bathroom, Open plan living onto deck plus lockup garage.
Minor Home: 87.79m2. 2 Bedrooms, 1 Bathtoom, Open plan living plus lockup garage.
Total privacy for both dwellings while capturing views and sun.