This House and Land Package qualifies for a $10,000 cash back when you go unconditional before March 31, 2025. For more information, visit the link above or reach out to our Sales Consultants for the full Terms and Conditions.
The Waiwai Plan is a masterpiece of architectural design nestled in the heart of the exclusive Riverview community. This stunning 210m² home offers a perfect blend of luxury, comfort, and convenience, with all-day sun gracing a generous 2504m² site, priced from $1,870,000.00. Immerse yourself in the tranquility of countryside living while staying connected to a warm and welcoming community - truly the best of both worlds.
This plan can be altered to suit your specific requirements, or we can create a custom architecturally designed home to suit your budget and vision on this expansive 2504m² section.
Kaukapakapa’s amenities are within a 2 minute commute and create a real sense of community. The town includes the Kaukapakapa Primary School, Pre-School and Pony Club, as well as the famous local dairy, fish and chip shop and convenience stores. Helensville is only 9.3km, 19km to Silverdale, 26km to Albany and 46km to the Auckland CBD.
Enjoy an enviable lifestyle with the perfect balance of peaceful living and easy commuting.
Build with Confidence! Generation Homes Guaranteed Fixed Price Build Contract and Build Time Frame, offers you peace of mind, making the building process smooth and stress-free.
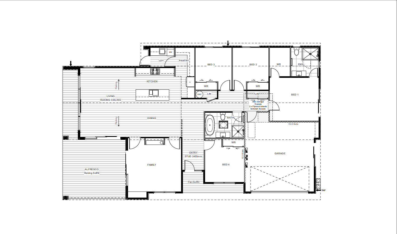
This fabulous home offers:
🏠 4 Spacious Bedrooms: Ideal for families, with the fourth bedroom perfectly positioned near the entrance—ideal for a home office.
🚿 2 Modern Bathrooms: Thoughtfully designed for family comfort.
🛋️ Cozy Separate Lounge: Features a built-in bookshelf and a stunning feature fireplace.
🌟 Open-Plan Living: Seamlessly flows into a well-appointed scullery and a separate laundry for added convenience.
🏡 Striking Exterior: Raking ceilings, elegant hardwood decking, and a spacious portico offers year-round indoor/outdoor living and entertaining.
🚗 Double Garages: Ample room for vehicles and storage.
💧 Three Water Tanks: Ensuring a reliable and sustainable water supply for your lifestyle needs.
Priced from $1,870,000.00 this isn’t just a home—it’s your gateway to luxurious living in a vibrant community. Don’t miss your chance to be part of this sought-after location. Contact Suanne or Mackenzie today to view this incredible site!
***Please note, photo's of our previously built Riverhead show home have been included as a visual aid***