This House and Land Package qualifies for a $10,000 cash back when you go unconditional before March 31, 2025. For more information, visit the link above or reach out to our Sales Consultants for the full Terms and Conditions.
Lot 51, Kohuhu - 2 Level Work and Live Duplex: Versatile Dual Living in Woodlands Rise, Orewa.
Priced at just $1,139,000!
Nukumea School Enrolment Zone – Move in and Enrol Today!
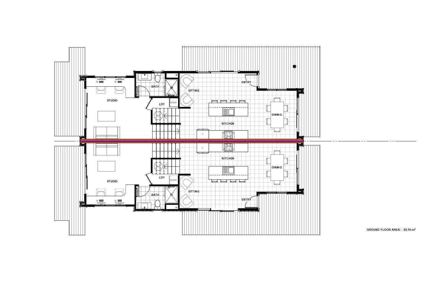
The Kohuhu plan is exceptionally versatile enabling two separate parties to comfortably work from home in their own spacious independent offices, on different levels of the home. On the ground floor the kitchen, dining, small sitting area and then down half level to the studio with office space on one side offers potential as a second lounge, a granny flat or a third bedroom.
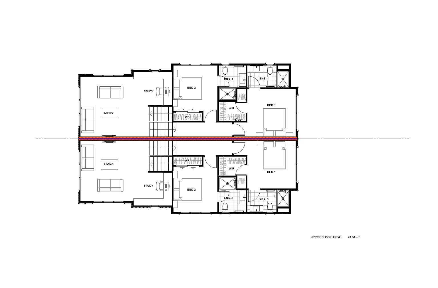
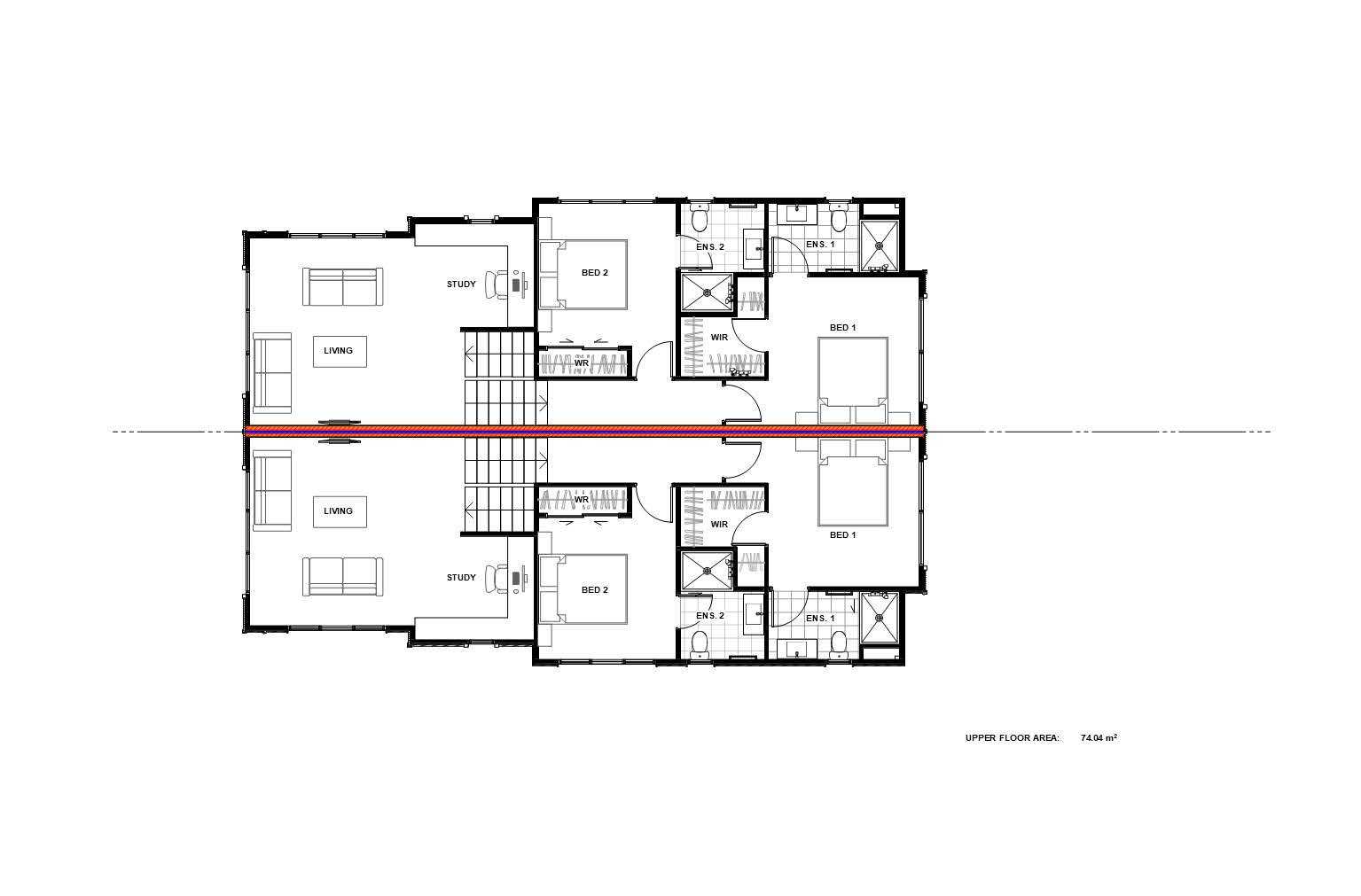
Meanwhile, on the second floor there is another office in the corner of the living room conveniently located a half a level down from the two bedrooms. Both bedrooms have their own ensuite and the main bedroom has a walk-in wardrobe for additional storage.
Just steps from the newly opened Nukumea Primary School (2023), your children will enjoy the convenience of an easy walk to school in a community that’s rapidly growing. Nukumea School’s enrolment zone means families who purchase land to build a home in the neighbourhood can enrol their children immediately. Plus, being just minutes from Orewa Beach, local shops, and excellent transport links, these homes deliver coastal living and urban convenience in one.
🏡 Home Highlights
Ground Floor: Dining, kitchen, small sitting area, step down to studio, bathroom, and separate laundry.
Upper Level: Living space with study, main bedroom with ensuite and walk-in robe, second bedroom with ensuite and wardrobe.
✨ Why Choose Generation Homes?
💰 Fixed price build contract – no unexpected costs.
🔒 10-Year Master Build Guarantee – for your peace of mind.
📅 Guaranteed move-in date once the slab is down – no surprises!
Specifications for Lots 49-52: Two-Level Work and Live Home.
Homes Starting from $1,129,000.00 to $1,149,000.00
🛏️ 2–3 Bedrooms (depending if studio is a bedroom)
🛋️ 1-2 Living Rooms (depending if studio is a living room)
🛁 3 Bathrooms
🚗 1 Carpark
🌞 Decking on 3 sides of the home offers plenty of outdoor options for sun, shade, or wind protection.
📏 Home size: 139.78m²
🌳 Section size: 169m²
🌟 Make the most of this rare opportunity to own one of our limited duplexes in Orewa!
With Stage 1 now selling, these homes won’t last long. Secure your piece of paradise and contact us today for more details!
📱 Explore this plan and style by scanning our showhomes.io QR Code or using our link for Web View Superlot 7