Located in the new neighbourhood of Hunua Views in Drury.
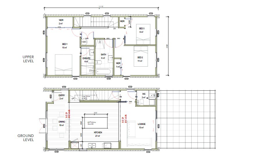
The home features three bedrooms including a master with ensuite, a separate family bathroom and an additional powder room on the ground floor.
Talk to us about your needs, we're here to help. Find out more in person at our Hunua Views Show Home at 11 Kaihaukai Lane, Ramarama or online in our Subdivisons section on our website.
ABOUT HUNUA VIEWS
Hunua Views in Drury is set against the backdrop of the stunning Hunua Ranges, just a short drive away, and is comprised of 800 new homes. With natural wetlands, streams and walkways woven throughout and expansive green spaces, there are unlimited recreational opportunities for the whole family to enjoy.
Conveniently positioned to the east of Auckland's motorway, Hunua Views offers an escape from city congestion while remaining handy to everything you love about Auckland.
Register your interest today by contacting our sales team on the details below.
GUARANTEED fixed price contract - no surprises or hidden extras