YOUR NEW HOME IN A FAMILY FRIENDLY, BEAUTIFUL, AND SOUGHT AFTER LOCATION
Make this your new home in this beautiful community that offers everything for modern living.
Our friendly team is here to help and can answer any questions you may have regarding the home, finance, design, or build process.
We offer a full design and colours service and have a committed team that will move you in for a FULLY FIXED PRICE.
Phone our team directly, email us, or message us online anytime.
Visit us online anytime - Generation.co.nz/Canterbury
FIND US ON FACEBOOK and INSTAGRAM - Generation Homes Canterbury
Facebook
Generation Homes Canterbury (@generationhomescanterbury) • Instagram photos and videos
Visit us:
Faringdon Show Home
Address: 25 Finstock Way, Rolleston
Opening Hours: Wednesday to Sunday 12-4pm
Faringdon, Rolleston Show Home | Canterbury (generation.co.nz)
Home Base Design Hub
Address: 688 Christchurch Akaroa Road, Tai Tapu
Opening Hours: Monday to Friday 10pm - 4pm
Home Base & Design Hub | Canterbury (generation.co.nz)
Architecturally designed
New code H1 compliant
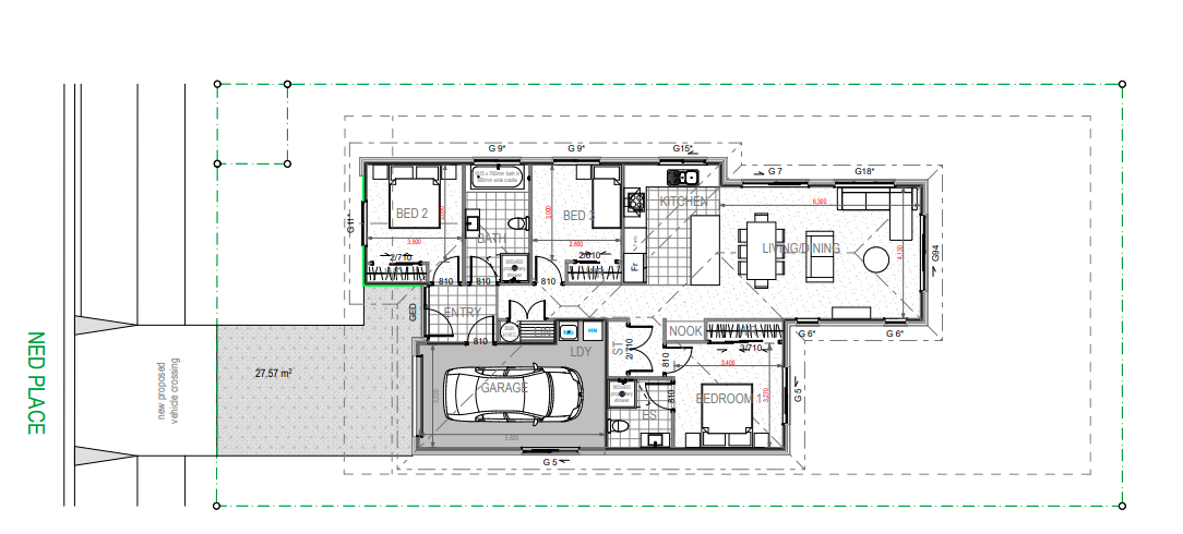
Three bedrooms
Master bedroom with ensuite
Open plan living and dining
Modern kitchen with appliances
Single car garage
35sqm of plain reinforced driveway concrete
20sqm of plain patio concrete
Boundary fencing, brick letterbox and clothesline
Heat pump
Brick cladding with secondary Linea cladding
Feature gable
Brick letterbox
LED lighting throughout
All consent and development costs included
Fixed price contract
10-year residential Master Builders guarantee
Please note that the pictured renders are artistic impressions only. Your completed new home will vary from this in colours chosen by you.
We can also amend any plan to suit your needs and change specifications to suit.
GH (Christchurch South) Ltd cannot be held liable for misinterpretation of the images or context.
No soft landscaping is included in this home and land package.
Contact your local Sales Consultants