10% deposit.
No progress payments and no interest payments to the bank during the build
Rest of the payment upon completion.
Fully FIXED PRICE.
Titles issued.
Limited turnkey slots available - DONT MISS OUT!
10-year Master Builders guarantee.
Make this your new home in this beautiful community that offers everything for modern living.
Our friendly team is here to help and can answer any questions you may have regarding the home, finance, design, or build process.
We offer a full design and colours service and have a committed team that will move you in for a FULLY FIXED PRICE.
We can answer any questions you may have and will guide you through the new home build journey from start to finish.
Phone our team directly, email us, or message us online anytime.
Visit us online anytime - Generation.co.nz/Canterbury
FIND US ON FACEBOOK and INSTAGRAM - Generation Homes Canterbury
Generation Homes Canterbury (@generationhomescanterbury) • Instagram photos and videos
Visit us:
Faringdon Show Home
Address: 25 Finstock Way, Rolleston
Opening Hours: Wednesday to Sunday 12-4pm
Faringdon, Rolleston Show Home | Canterbury (generation.co.nz)
Home Base Design Hub
Address: 688 Christchurch Akaroa Road, Tai Tapu
Opening Hours: Monday to Friday 10pm - 4pm
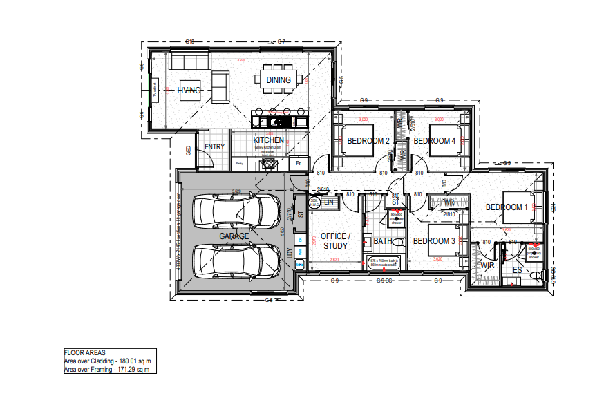
Architecturally designed
New code compliant
Four bedrooms
Open living and dining
Separate office/study or media/play room
Master bedroom with walk in robe and ensuite
Two bathrooms including ensuite
Modern and large kitchen with appliances
Double car garage
40sqm of reinforced plain drivewary concrete
25sqm of patio concrete
Boundary fencing, brick letterbox and clothesline
Heat pump
Brick and Linea claddings
Feature gables
LED lighting throughout
All consent and development costs included
Fixed price contract
10-year residential Master Builders guarantee
Please note that the pictured renders are artistic impressions only. Your completed new home will vary from this in colours chosen by you.
We can also amend any plan to suit your needs and change specifications to suit.
GH (Christchurch South) Ltd cannot be held liable for misinterpretation of the images or context.
Contact your local Sales Consultants