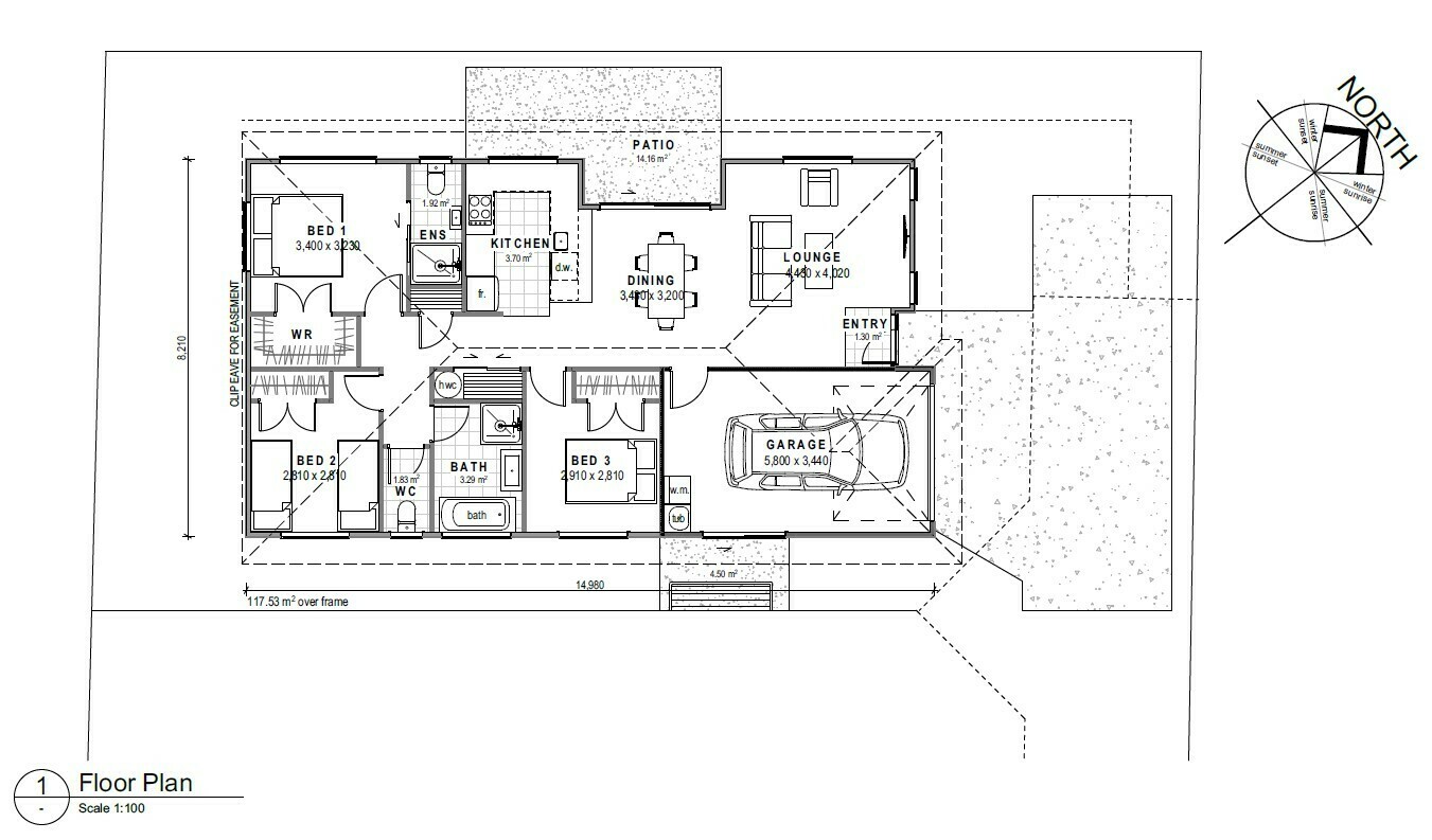
A perfect opportunity to secure a brand new 3-bedroom, 2-bathroom home at a good price. Located in the heart of Taupo, come home and enjoy a warm, modern home with a low maintenance section.
Welcome your guests into open plan kitchen, living and dining. This home is designed to make the most of the section while not compromising on comfort. Great for a couples, young families or an easy care retirement and lock-up and leave.
Located in a great street surrounded by other established properties, this property is in the highly regarded Hilltop School zone, close to parks, reserves and a short walk to the shops.
You will get to be part of the design of your home - have it look the way you want in a style to suit you.
This is an all inclusive fixed price contract we take care of everything down to your letterbox and washing line.
Note: Image is an artistic impression