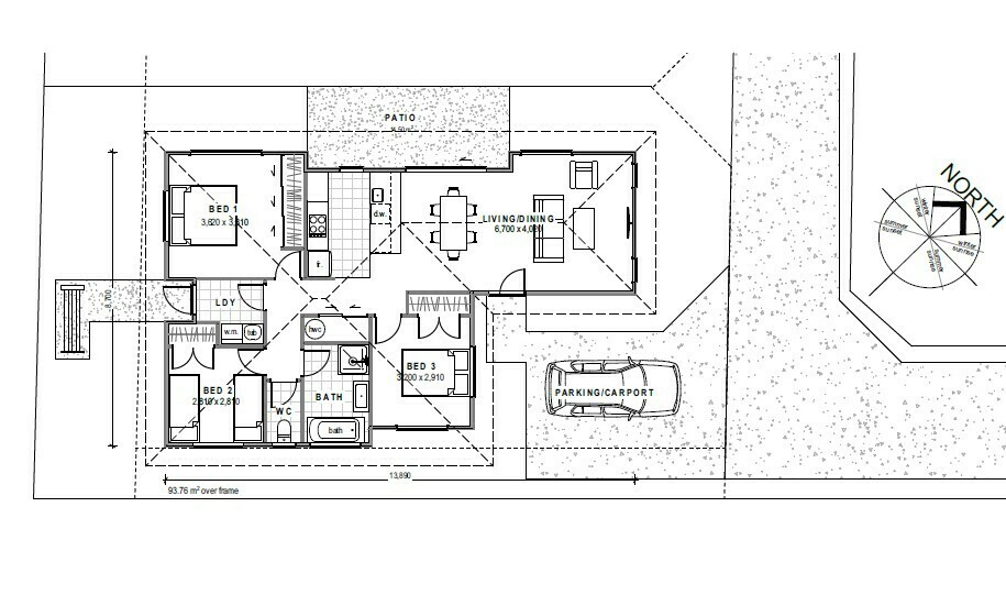
A 3-bedroom home with open plan kitchen, living and dining that makes effective use of space on an easy-care section. This property lies within a great established neighborhood and is zoned for Hilltop school, close to town and easy walk to local shops and reserves.
This is a great option for young families, couples, easy-care retirement or a rental investment.
This is an all-inclusive fixed price contract, call today for more information.
Note: Image is an artistic impression