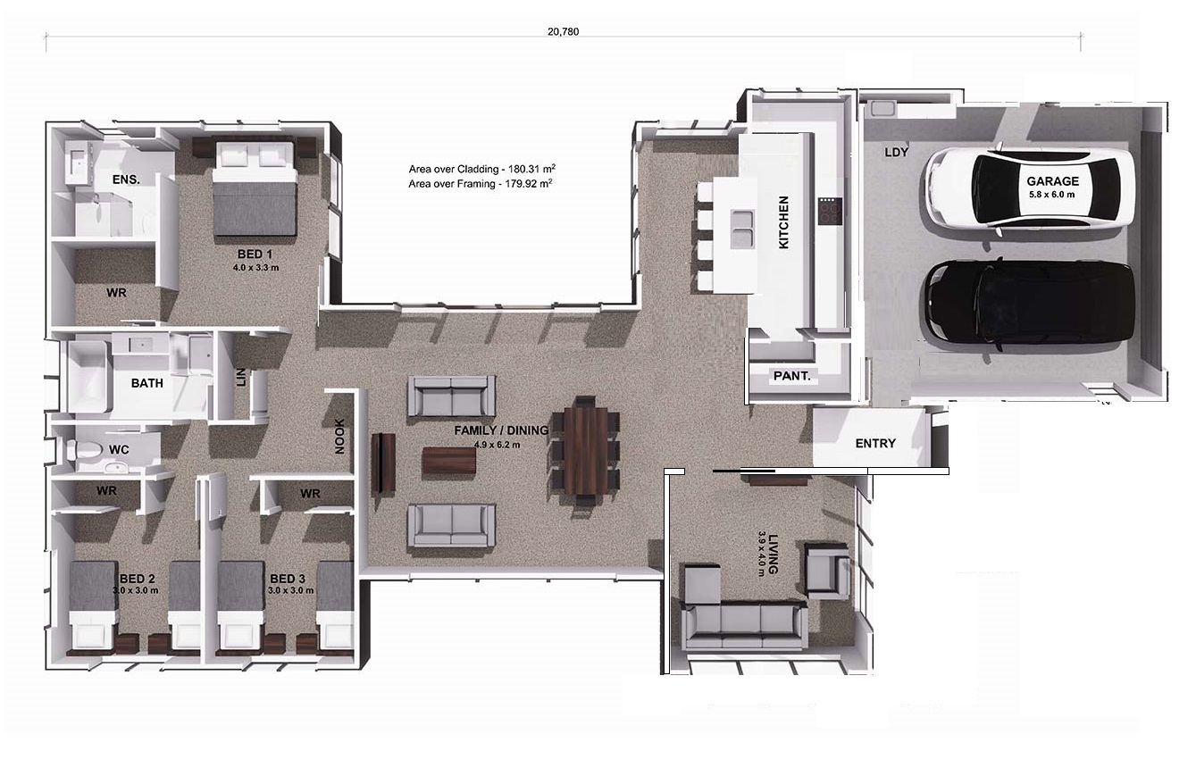
This custom Wainui home is an entertainer's dream, designed specifically for this site to offer a seamless fusion of cozy living and effortless indoor/outdoor flow with two entertainment areas. It maximizes the view over the reserve and captures the morning and evening sunlight. The outstanding layout includes three bedrooms, with the master bedroom providing luxury through an ensuite and walk-in wardrobe. It features two spacious living areas, a luminous open-plan kitchen, dining, and family space, along with a well-equipped kitchen that boasts plentiful storage and an elegant island.
This house and land package includes:
Discover the magnificent Northland east coast where The Landing graces the entrance to Whangarei Harbour, offering a sought-after view towards Mt Mania on the Whangarei Heads. This coastal locale affords a relaxed lifestyle, enhanced by nearby amenities that cater to the most sophisticated preferences. Situated 36km from Whangarei City Centre, this seaside location promises a tranquil way of life.
At The Landing, you'll be situated near the beach and just a 30-minute drive from Whangarei, One Tree Point also boasts connectivity to Auckland through the newly built expressway.
Walk to the beach from your new home!
The Landing offers easy access to:
Our promise to you:
• A 100% Fixed Price guarantees no unexpected costs at the end of construction, allowing you to manage your budget effectively.
• 10-year residential build guarantee
• A dedicated sales team attending to your needs throughout the process, ensuring a stress-free result.
The Generation Homes team excels in communication, ensuring clients are informed throughout the process.
Three double bedrooms
Ensuite and walk-in wardrobe to master
Open plan family and dining
Galley style kitchen
Separate living room
Walk-in pantry
Fixed price contract
10 year residential build guarantee