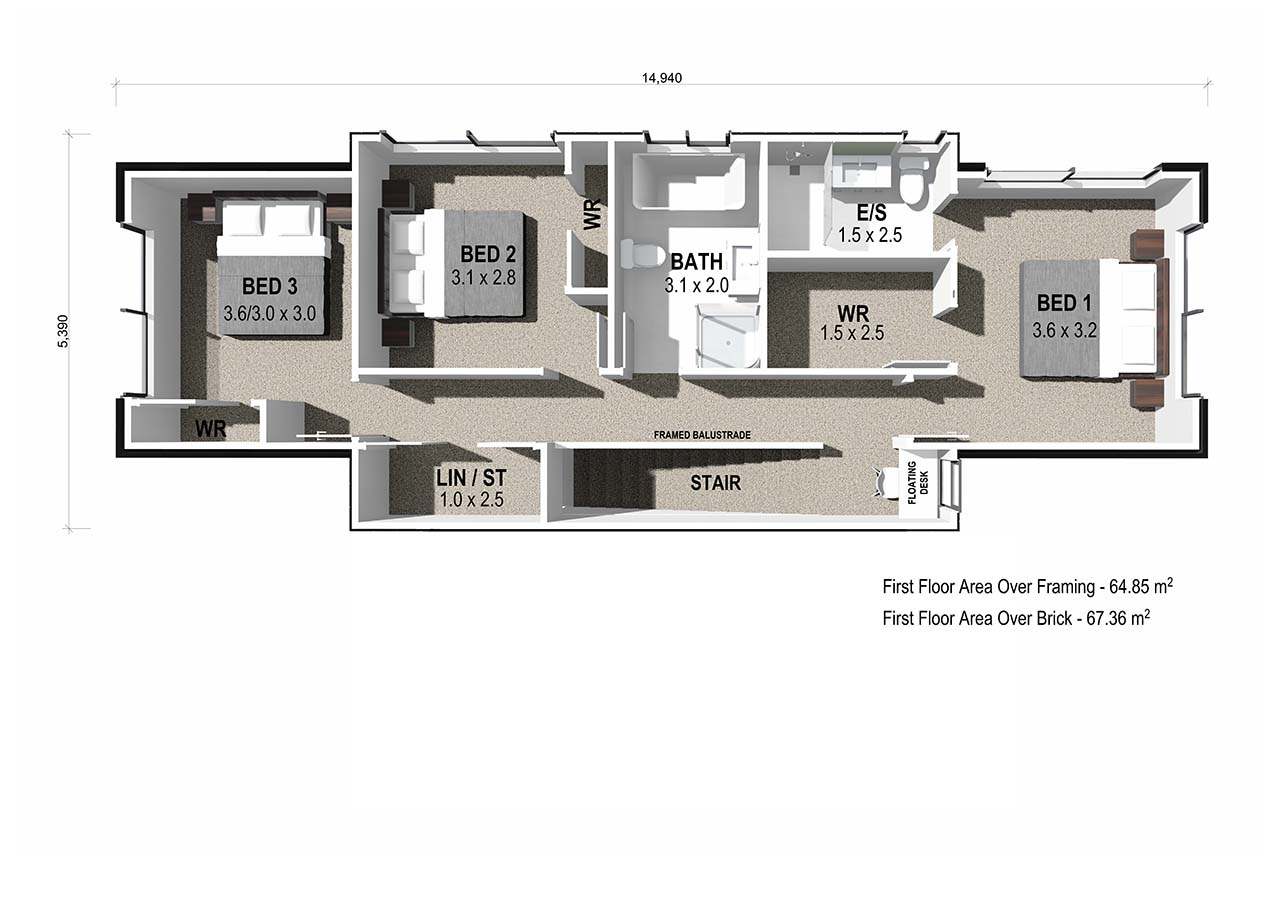
The Waiwhakareke plan incorporates a thoughtful approach to the seamless integration of indoor and outdoor living spaces. Featuring three spacious double bedrooms, including a master bedroom with a walk-in wardrobe and ensuite, a galley style kitchen and single garage.
Find out the cost to build this plan