Build with us

Plans

Whether you're looking for a 2-bedroom, 3-bedroom, 4-bedroom, or a larger house plan, Generation Homes offers a diverse range of house designs and floor plans to match your new home needs perfectly.

Filter
Range Learn more about our Plan Ranges
House Details
Bedrooms
Bathrooms
Living Areas
Garage
Levels
Showing 4 items of 87
Sort by
Plans by Generation Homes

Balmoral

Designed for an 800m² corner site, the Balmoral plan is the ideal combination of functionality and elegance. This Home and Income plan showcases 3 bedrooms, including a luxurious master suite with an ensuite and walk-in wardrobe. It also features a galley kitchen with a scullery and a dedicated media room.
275 ㎡ 5 3 3 3
 Generation Homes Balmoral Balmoral 3 D View 03 web  Generation Homes Balmoral Balmoral 3 D Floor Plan web
Plans by Generation Homes

Buckingham

Our Home & Income Buckingham plan boasts four double bedrooms, the master with its own luxurious ensuite and wardrobe. In addition, the plan features a stylish galley kitchen with a spacious walk-in pantry, an open plan dining area, a separate family room, a separate formal lounge, and a grand entrance to welcome you home.
350 ㎡ 5 5 3 3
 Generation Homes Buckingham Buckingham 3 D View v2 2 web  Generation Homes Buckingham Buckingham 3 D Floor Plan web
Plans by Generation Homes

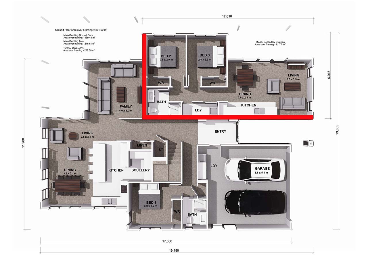
Dover

The Dover Home and Income plan is the perfect solution for growing families, inter-generational living or Airbnb opportunities. The main dwelling contains three bedrooms and is spread over two levels, whereas the minor two bedroom dwelling is located on the ground floor.
278 ㎡ 5 4 4 2
 Generation Homes Dover Il 15383 Orewa Show Home Render 01 web  Generation Homes Dover Dover Ground Floor 3 D Floor Plan web
Plans by Generation Homes

Rata

A spacious five-bedroom home with additional income potential. The main dwelling upstairs features four double bedroooms, a galley-style kitchen with a scullery and an alfresco dining area. While downstairs features a double garage with internal access and a laundry, as well as a separate one-bedroom unit containing a kitchenette, dining and living room.
257 ㎡ 5 3 2 2
 Generation Homes Rata Rata Lot 102 3 D Render web  Generation Homes Rata Rata 3 D Floor Plan Lower Floor web