Come and enjoy an easy pace of life in the rural township of Matamata. Titles have now been issued and we are ready to build! Be quick to secure your house and land package!
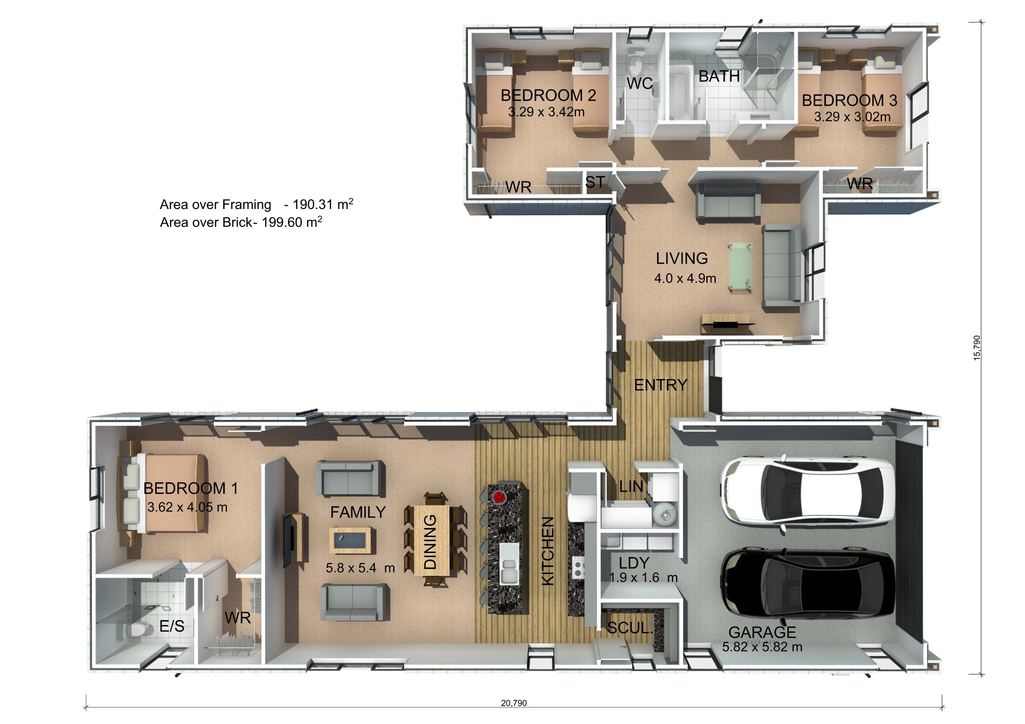
Do you have teenagers or guests that regularly stay? The Ngaroto is a modern pavilion style plan that features a Master and living wing on one side and a guest wing on the other. Two are connected by a welcoming entry and separate lounge room. Entertain in the open plan kitchen, dining, family area and spill out on to the large patio over looking your back yard. Equipped with a dedicated laundry space, large walk in linen and convenient scullery, this home is ready for entertaining guests or servicing a busy household.
3 double bedrooms
Master with ensuite and walk in wardrobe
Covered entry porch
Double, internal access garage with laundry alcove
Open plan living and dining area with entertainers kitchen at the heart of the home
Walk in pantry
Second, separate lounge room off feature entry area
Sliding doors from kitchen, family, master and living leading to North-facing terrace
Separate toilet with handbasin
Walk in linen cupboard
Complete landscaping package:
Hydroseeded lawn
Barked and planted gardens
Concrete garden kerbing
1.8m high Laminata timber fencing to rear and side boundaries
Powdercoated steel letterbox
Clothesline
Fixed price contract - no PC sums or cost escalation clauses
10 year residential build guarantee
Come and enjoy an easy pace of life in the rural township of Matamata. Titles have now been issued and we are ready to build! Be quick to secure your house and land package!
Contact Julie (021316377) today to talk about how this package could be yours.