Details
Subdivision:
Acacia Avenue, Kihikihi
Location:
Waikato Central
Description
Acacia Ave is a new subdivision in the Waipa township of Kihikihi. Just a five minute drive to the main hub, Te Awamutu and a 35 minute drive to the conveniences of Hamilton. Enjoy a game of bowls with friends, shop at one of the two superettes, indulge in a variety of takeaway options and browse through boutique clothing stores. Everything you need is a stroll away.
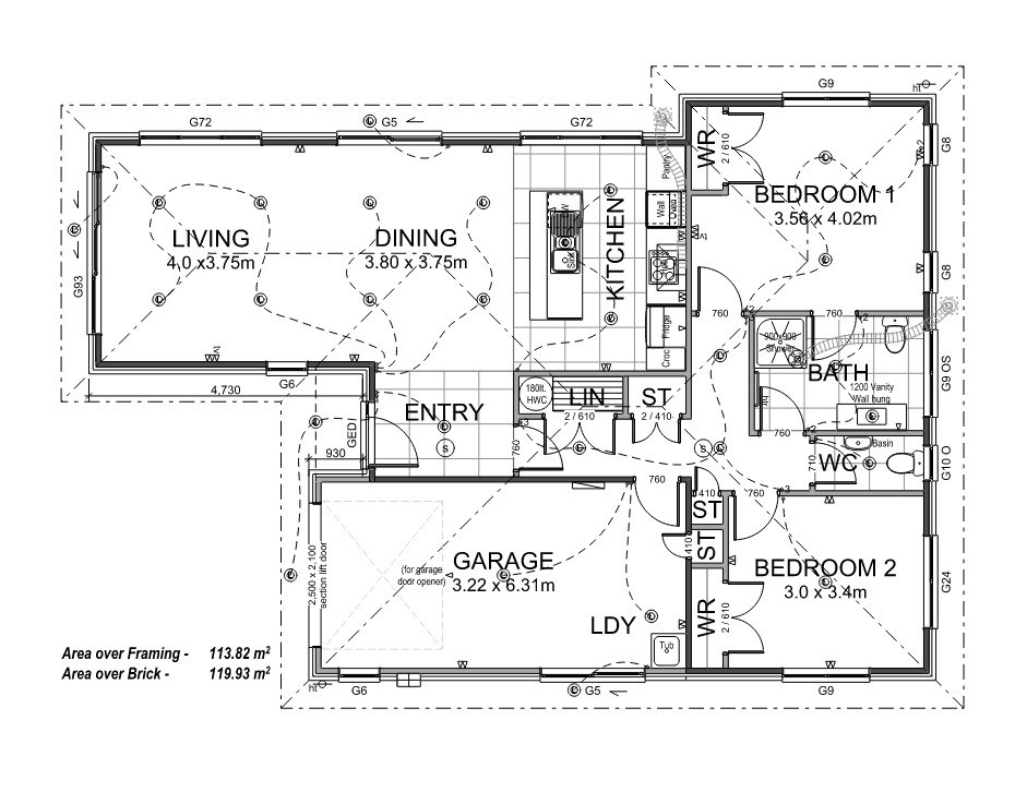
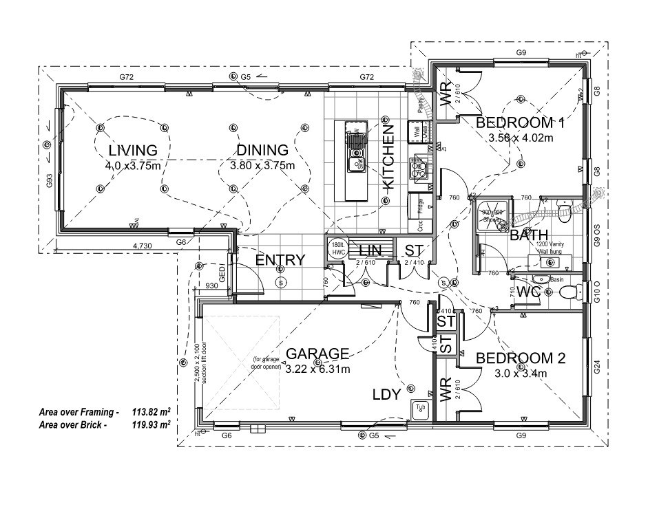
Dreaming of simplifying your lifestyle? This lovely easy-care brick home means you can put your feet up on the weekends or head to the beach! Two generous bedrooms, sunny living areas and oodles of storage should tick all the right boxes here!
- 2 bedrooms
- Master with direct access to bathroom
- Separate toilet for guests
- Large entry area leading to sunny open plan living, kitchen and dining
- Designer kitchen with quality Bosch appliances
- Stacker sliding door to outdoor terrace
- Generous single garage with laundry
- Plenty of storage
- Roller blinds to windows (excluding garage and bathrooms)
- Landscaping package including: stormwater detention system, timber fencing and retaining, concrete driveway and terraces, barked & planted gardens, concrete garden kerbing, hydroseeded lawn, clothesline, steel pillar letterbox
- Fixed price contract - no PC sums or cost escalation clauses!
- 10 Year Residential Master Build Guarantee
Come and enjoy an easy pace of life in the rural township of Kihikihi. Titles have now been issued and we are ready to build! Be quick to secure this house and land package!
Contact Julie (021316377) today to talk about how this package could be yours.
Home features
- 2 generous bedrooms
- Open plan living, dining & kitchen
- Single, internal access garage with laundry and bonus storage
- Full landscaping package
- Fencing and retaining included
- Easy-care brick cladding and metal tile roof