This House and Land Package qualifies for a $10,000 cash back when you go unconditional before March 31, 2025. For more information, visit the link above or reach out to our Sales Consultants for the full Terms and Conditions.
Lot 3 Kahikatea - Your Dream 3-Level Home and Income Opportunity!
Priced at: $1,699,000.00
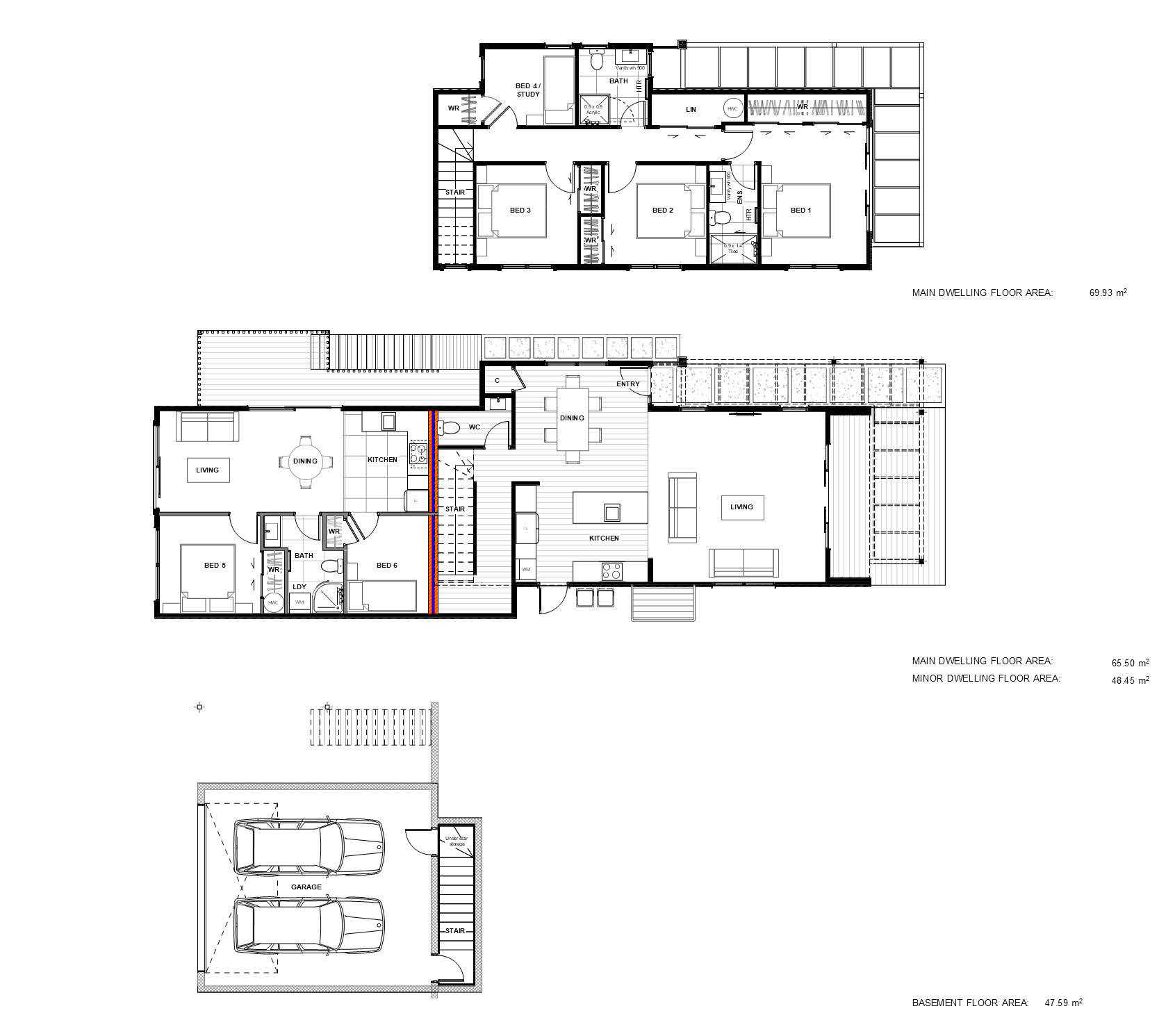
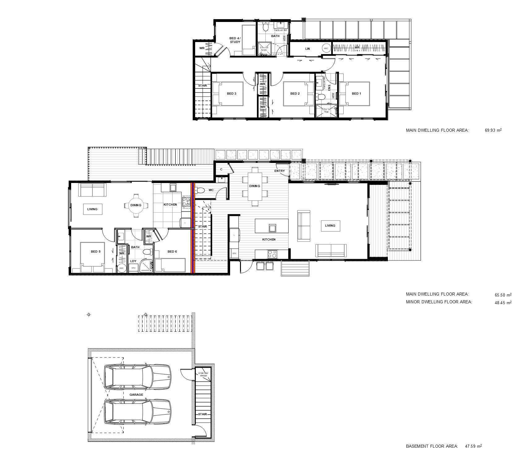
Discover the remarkable Kahikatea plan: a property brimming with potential! Featuring a spacious main home and fully independent Minor Dwelling - it’s perfect for rental income, extended family, or a private retreat for teens. Experience unparalleled flexibility with this exceptional gem!
Just steps from the new Nukumea Primary School (2023), your children can easily walk to school. Families purchasing land can enroll their children immediately. Plus, enjoy nearby Orewa with its famous beach, local shops, fabulous restaurants and cafe's and excellent, sporting and recreational facilities and transport links for the best of coastal and urban living.
The Kahikatea boasts an open-plan lounge, chic island kitchen, and entertainer’s deck. Upstairs, enjoy a luxurious main suite, two generous bedrooms, and a flexible study. The fully independent Minor Dwelling features its own entrance, kitchen, bathroom, deck, and parking, offering incredible versatility and adaptability.
🏗️ Genuine Fixed Price Build Contract
🔒 10-Year Master Build Guarantee for your peace of mind
📅 Guaranteed Move-In Date, allowing accurate forward planning for your move-in!
These Home and Income, House and Land Packages for lots 2-6 range in price from $1,699,000 to $1,749,000.
Total home size: 232.47m², with sections of 221m².
🏡 4 Bedrooms (including 1x single bedroom or study)
🍽️ Open plan kitchen/dining/living room
🛁 2.5 Bathrooms
🚗 Double garage
📦 3 x storage cupboards
🌳 Living room seamlessly flows to private timber deck.
Home size: 183m²
🛌 2 Bedrooms
🍴 Open plan kitchen/dining/living room leading to a separate deck
🛀 Bathroom
Minor Dwelling size: 48.5m²
Explore this plan and style by scanning our showhomes.io QR Code or using our link for Web View Superlot 1
Don’t miss securing your slice of paradise! Let the potential rental income contribute towards your mortgage! Contact us today for more details! 📞